ƒgƒbƒvƒy[ƒW > •¨ŒŒŸõ > •½’ËŽs > •½’ËŽs’†—¢49-13 •½’Ë ‘Ý‘qŒÉ
•½’ËŽs’†—¢49-13 •½’Ë ‘Ý‘qŒÉ Ú׃f[ƒ^
“d˜b”Ô†i03-6260-658603-6260-6586j‚Å‚· >> ‚¨–â‚¢‡‚킹‚ÌÛ‚Í•¨Œ”Ô† 47593 ‚ð‚¨’m‚点‰º‚³‚¢B¦•s“®ŽY‹ÆŽÒ—l‚Ö‚Ì‚²Ð‰î‚Í•s‰Â‚Å‚·B
| •¨Œ–¼ | •½’Ë ‘Ý‘qŒÉ |
|---|---|
| ‰ˆü^‰w | JR“ŒŠC“¹–{ü / •½’Ë |
| ƒoƒX^“k•à | ƒoƒXF10 •ª ^ “k•àF1 •ª |
| ŠÝ’n | •½’ËŽs’†—¢49-13 |
| ’À—¿(’ØE‰~) | ’Ø 6,069 ‰~ i‘Šz 880,000 ‰~j |
| ‹¤‰v”ï | |
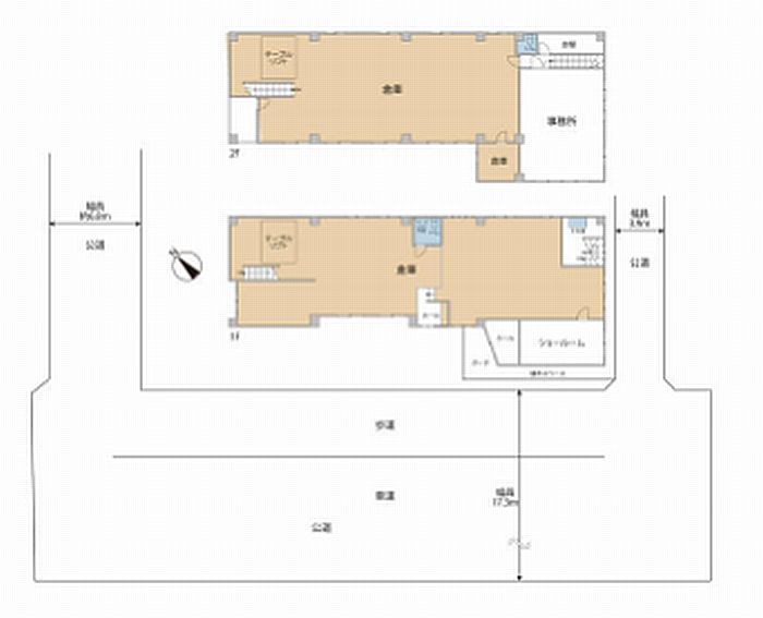
| Žg—p–ÊÏ | 145 ’Ø |
| •~’n–ÊÏ | 145.8 ’Ø |
| —ç‹à | 1 ƒ–ŒŽ |
| •~‹à | |
| •ÛØ‹à | 6ƒ–ŒŽ•ª |
| \‘¢ | “Sœ‘¢ |
| vH”N | 1988 ”N |
| ŠÝŠK | 1-2/2 ŠK |
| Ú“¹ó‹µ | 17.2‚A6.8‚ |
| —p“r’nˆæ | ‘æˆêŽíZ‹’nˆæ |
| ’“ŽÔê | —L |
| Œ_–ñŠúŠÔ | 3 ”N |
| Œ»‹µ | Œ»‹ó |
| ”õl | P3‘ä |
| ‘Ý‘qŒÉE‘ÝHêE‘Ý’n‚ÌŽ–‹Æ—pƒ|[ƒ^ƒ‹ƒTƒCƒgNo.‚P |
|---|
|
•½’ËŽs’†—¢49-13‚ð‚Í‚¶‚ß“Œ‹žE_“ÞìEç—tEé‹ÊE‰¡•lEìè‚̑ݑqŒÉE‘ÝHêE‘Ý’n‚Ìî•ñ‚ðŒŸõ‚Å‚«‚Ü‚·B•½’ËŽs’†—¢49-13‚ÌŽ––±Š•tEƒzƒCƒXƒgEƒNƒŒ[ƒ“•tAƒLƒ…[ƒrƒNƒ‹AH‹Æ’nˆæ‚݂̑µ‘qŒÉE‘Ý‚µHê‚àƒvƒ‚ª‚¨’T‚µ‚µ‚Ü‚·B•½’ËŽs’†—¢49-13‚̑ݑqŒÉE‘ÝHêE‘Ý’n‚Í•¨Œ”No‚P‚̃eƒiƒ“ƒg‚m‚d‚v‚r‚É‚¨”C‚¹‰º‚³‚¢B•½’ËŽs’†—¢49-13‚őݑqŒÉE‘ÝHêE‘Ý’n‚ðŠ—L‚̃I[ƒi[—l‚ɂ݂͑µ‘qŒÉE‘Ý‚µHê‚ÌL‚ðŒfÚ’v‚µ‚Ü‚·‚̂ť”ñA‚²‘Š’k‰º‚³‚¢B‘Ý‘qŒÉE‘ÝHêE‘Ý’n‚ð‘Ý‚µ‚½‚¢•û‚àAŽØ‚肽‚¢•û‚àƒeƒiƒ“ƒg‚m‚d‚v‚rI |
_“ÞìƒGƒŠƒA
- H—tŒ´/
- Œä“k’¬/
- –å‘O’‡’¬/
- –Øê/
- V–Øê/
- –LF/
- ŒŽ“‡/
- Ÿ‚Ç‚«/
- ’z’n/
- ’C–¤/
- V¬Šâ/
- ‹ÑŽ…’¬/
- ‹TŒË/
- Š‹¼/
- ¼Š‹¼/
- Š‹¼—ÕŠCŒö‰€/
- ‘D–x/
- ˆê”V]/
- ]/
- ‹eì/
- Z‹g/
- ‘哇/
- ‰Ÿã/
- ”ö‹v/
- ‰¤Žq/
- –kçZ/
- “ìçZ/
- V”nê/
- •¨‰¡’š/
- ŽLF/
- •½˜a“‡/
- âï’J/
- ‘å’¹‹/
- ŒŠŽçˆî‰×/
- ã–ì–Ñ/
- ‰ºŠÛŽq/
- –L“c/
- “ú–ì/
- ”q“‡/
- ‚“‡•½/
- ˆ»£/
- ’¬‰®/
- Œì‘Ž›/
- ”’ŽR/
- çÎ/
- ç‘Ê–Ø/
- ‘ƒŠ›/
- ‹îž/
- “c’[/
- “u/
- ¼‘•ªŽ›/
- •‘ ‹«/
- •‘ ¬‹àˆä/
- Œõ‚ª‹u/
- •ª”{‰ÍŒ´/
- ŽÅ‰Y‚Ó“ª/
- “Œ‰_/
- ƒeƒŒƒRƒ€ƒZƒ“ƒ^[/
- £/
- “ì’¬“c/
- î‘å‹´/
_“ÞìƒGƒŠƒA
- ƒZƒ“ƒ^[–k/
- ƒZƒ“ƒ^[“ì/
- V‰H/
- –kV‰¡•l/
- Š›‹/
- ’†ŽR/
- \“úŽsê/
- ’·’Óc/
- ‚‚«‚Ý–ì/
- “ñŽqV’n/
- ‚’Ã/
- Š‚ª’J/
- ]“c/
- Žs‚ª”ö/
- •‘ Vé/
- •‘ ’†Œ´/
- “ì•”Žsê/
- ’¹•l/
- K‰Y/
- ŽY‹ÆU‹»ƒZƒ“ƒ^[/
- •Ÿ‰Y/
- ‹v—¢•l/
- ЌԘܫ/
- ŽÐ‰Æ/
- ŒÃ•£/
- •£–ì•Ó/
- –î•”/
- ‹´–{/
- ‘Š•‘ä/
- ’·Œã/
- ¶”ž/
- VŽqˆÀ/
- ŽY‹Æ“¹˜H/
- ¬“‡V“c/
- •lìè/
- ’ߌ©¬–ì/
- Vìè/
- ‚¢‚¸‚Ý–ì/
- ŽOƒc‹«/
- ‘å‘D/
- ÷ƒ–‹u/
- ‚Àa’J/
- ‚³‚ª‚Ý–ì/
- ‘Š–Í‘å’Ë/
- “oŒË/
- V•S‡ƒ–‹u/
- KŽè/
- ДΟ/
- Ž“‡“c/
- •½ŠÔ/
- ˆ¤bΓc/
- ªŠÝ/
- ‘qŒ©/
- –kŠƒ–è/
- “ì‹´–{/
- î’¬/
- ‘åì/
- VŽÅ‰Y/
ç—tƒGƒŠƒA
- Žs쉖•l/
- “ñ–“V’¬/
- “ì‘D‹´/
- VKŽu–ì/
- ŠC•l–‹’£/
- ŒŸŒ©ì•l/
- ˆî–ÑŠCŠÝ/
- ç—t‚݂ȂÆ/
- Œ´–Ø’†ŽR/
- –“T/
- s“¿/
- ”ªç‘ã‘ä/
- ”ªç‘ã—΂ª‹u/
- ”ªç‘ã’†‰›/
- ‘ºã/
- V‘D‹´/
- ”‚Ì—tƒLƒƒƒ“ƒpƒX/
- ”‚½‚È‚©/
- –k”/
- ìŠÔ/
- ”~‹½/
- ‰^‰Í/
- ‚‚Ê‚¬ŽR/
- •¨ˆä/
- •l–ì/
- ”ª”¦h/
- ŒÜˆä/
- Žoƒ–è/
- ’·‰Y/
- “s‰ê/




